Vereinshaus von Kaltern
- 370 Personen
- 1 Saal
- Vereinshäuser
Als Haus des "Katholischen Gesellenvereins" wurde das Gebäude 1911 nach Plänen der Münchner Architekten Gebrüder Ludwig erbaut. Es ist eines der wenigen Jugendstilgebäude in Kaltern. Heute dienst es den verschiedenen Vereinen in Kaltern als Veranstaltungslocation und kann für Tagungen, Vorträge, Ausstellungen, Aufführungen oder anderen Veranstaltungen gebucht werden.
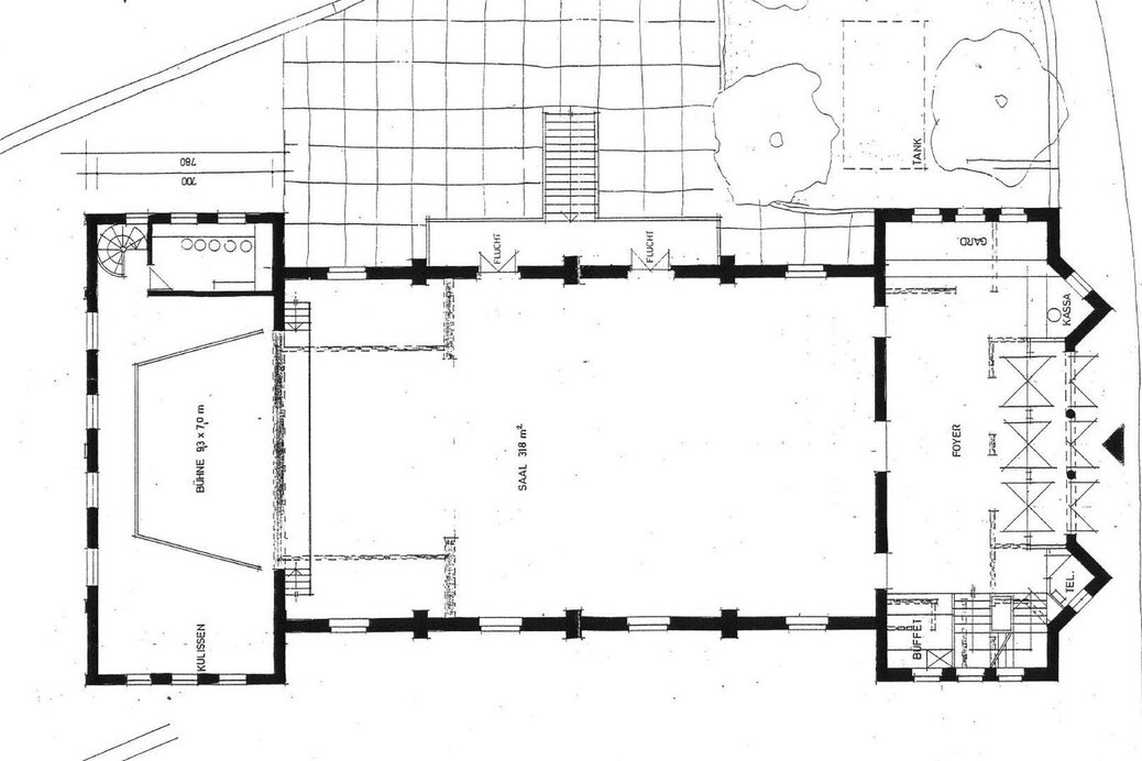
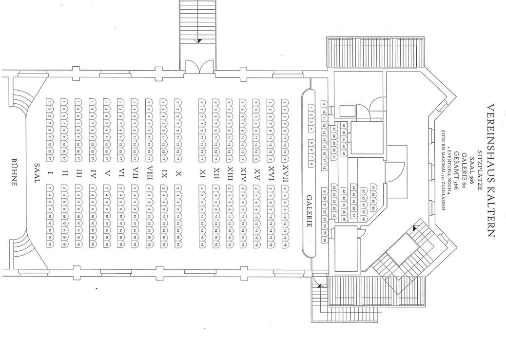
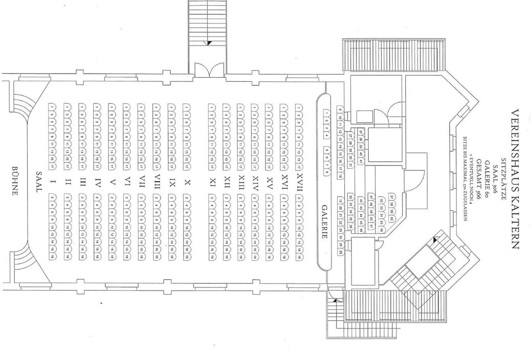
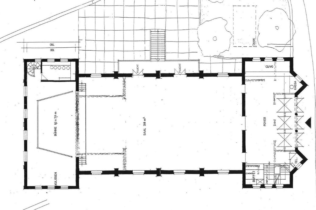
Der große Saal im Vereinshaus in Kaltern bietet Platz für Veranstaltungen, Aufführungen, Meetings, Seminaren und ähnlichen Events bis zu 370 Personen. Tische und Stühle stehen zur Verfügung. Ein abgetrennter Bereich mit Garderobe kann als Empfangsbereich genutzt werden. Eine Bar sowie eine Küche mit Küchenutensilien steht zur Verfügung (Aufpreis). Barrierefreie Nutzung des Raumes möglich.
- Garderobe
- Barrierefreier Zugang
- Heizung
- Tisch
- Projektor
- Verdunkelung
- Autonomer Zugang zu den Räumlichkeiten
- Räumlichkeiten für Empfang
- Mikrofon
- Leinwand
Von Bozen kommend (Norden): Von Bozen die Südtiroler Weinstraße entlang, durch Eppan hindurch bis nach Kaltern. Beim dritten Kreisverkehr an der Südtiroler Weinstraße die zweite Ausfahrt in Richtung Sportzone St. Anton nehmen und anschließend bei der zweiten Abzweigung rechts abbiegen. Nach etwa 250 m befindet sich das Kath. Vereinshaus auf der rechten Straßenseite. Der öffentliche Parkplatz „Sölva“ (gebührenpflichtig) befindet sich schräg gegenüber des Kath. Vereinshauses.
Von Tramin kommend (Süden): Aus dem Süden die Südtiroler Weinstraße entlang in Richtung Bozen bis nach Kaltern, beim ersten Kreisverkehr die dritte Ausfahrt in Richtung Sportzone St. Anton nehmen und anschließend bei der zweiten Abzweigung rechts abbiegen. Nach etwa 250 m befindet sich das Kath. Vereinshaus auf der rechten Straßenseite. Der öffentliche Parkplatz „Sölva“ (gebührenpflichtig) befindet sich schräg gegenüber des Kath. Vereinshauses.&
Vereinshaus von Kaltern
39052 Kaltern am See - Südtiroler Weinstraße
- Urlaubsplanung leichtgemacht: verbinde suedtirol.info mit deinem Südtirol Mobile Guide und genieße unbeschränkten und einfachen Zugriff auf deine Favoriten.
- Die beste Ideen für deinen Südtirol-Urlaub kannst du als Favorit abspeichern und jederzeit weiterbearbeiten.
- Alle Favoriten werden in einer Kartenübersicht abgebildet.